Ciclo de esquemas elétricos: guia completo do diagrama à produção
Quando falamos sobre o ciclo de esquemas elétricos, pensamos principalmente em todas as etapas que compõem a criação de um projeto elétrico. Ao imaginar uma ligação simples, como o acionamento de um motor, precisamos criar os símbolos de disjuntores, contatores, bornes, entre outros.
Além disso, é necessário dimensionar a fiação e o cabeamento que esse circuito vai precisar e definindo como essas informações serão repassadas adiante.
Afinal, é fundamental que o montador tenha detalhes sobre onde instalar cada componente elétrico, por onde os cabos vão passar dentro das canaletas ou eletrocalhas, e quem será responsável pela compra dos componentes, sendo que o comprador precisará da lista de materiais.
Com todas essas informações, você deve estar se perguntando: mas como posso melhorar cada projeto elétrico do seu diagrama até a produção do seu produto?
Siga a leitura e confira como o SOLIDWORKS Electrical está presente em cada parte desse ciclo e quais processos podem ser otimizados ao longo dele.
Criação de diagramas
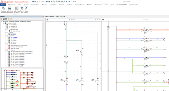
Criar um esquema elétrico exige um processo bem estruturado, principalmente porque os diagramas serão o ‘coração’ da produção do seu produto. Quando começamos um projeto, precisamos definir o modelo de página que vamos usar, criar os componentes que farão parte dele e determinar as fiações que vão compor os esquemas.

Componente elétrico
Falar sobre a criação de um componente vai muito além da simbologia. Essa etapa envolve representações multifilar (trifilar) e unifilar, dados técnicos e layouts.
Pensando nisso, um dos grandes destaques do SOLIDWORKS Electrical é justamente a criação de componentes, pois ele permite estar um passo à frente em relação a outras soluções.
Leia mais:
- Como explorar ao máximo o SOLIDWORKS Electrical em seus projetos elétricos
- O impacto do SOLIDWORKS Electrical nos desafios dos projetos elétricos
Nesse contexto, o SOLIDWORKS Electrical é a solução ideal. Ele conta com uma biblioteca local, o que significa que, ao ser instalado, traz os principais símbolos prontos para uso.
Sendo assim, o conceito de “componente” ganha uma nova dimensão, já que dentro da biblioteca é possível vincular todas as suas representações a uma única referência comercial.
Assim, ao escolher um motor, por exemplo, é possível definir o part number, o fabricante, o número no ERP e as representações que serão utilizadas nos diagramas multifilar e unifilar, além de como esse mesmo componente será inserido no ambiente CAD mecânico.

Ciclo de esquemas elétricos | Criação do cabeamento
Com os componentes inseridos, podemos pensar na fiação que passará por esse circuito. Cada fio adicionado possui características essenciais, como seção, diâmetro, cor e, em muitos casos, um código interno.
Essas ligações funcionam como um mapa de acionamento, cuja função é conectar e comunicar as interações entre os componentes de um circuito. Além disso, elas servem como base para a montagem, sendo a passagem desses fios -que realmente transmitem a funcionalidade do produto.
Tendo isso em mente, é fundamental indicar ao montador o que está ligado a cada ponto e é nesse momento que o SOLIDWORKS Electrical pode transformar a forma de trabalhar.
Uma vez desenhados os fios, é possível gerar listas com informações de origem e destino e ainda manter a integração aberta para o roteamento, quando o SOLIDWORKS Electrical é conectado ao SOLIDWORKS CAD.

Layout de distribuição
Com os símbolos e a fiações criadas, partimos para o dimensionamento do diagrama, definindo onde cada disjuntor, contator, conector e borne ficará no produto final.
A criação de um layout ou design de posicionamento é fundamental para transmitir essas ligações ao restante da montagem.
Os layouts garantem que os componentes estejam em locais seguros e que não haja interrupções no circuito, e projetar esse dimensionamento é um dos pilares do SOLIDWORKS Electrical.
É nele que podemos ir desde um simples desenho de painel em 2D até um posicionamento mais complexo, envolvendo as máquinas conectadas ao projeto, basicamente tudo o que fica externo a um painel.
Essa visão em 3D materializa o que os projetistas imaginaram lá no início. Quando conseguimos organizar essas ligações, garantimos a colaboração entre os setores elétrico e mecânico, permitindo que a criação do produto seja visualizada em todas as suas etapas de planejamento.

Exportação do diagrama elétrico
E para finalizar o ciclo de criação de um esquema elétrico é a hora de exportar essa informação para todos os setores.
O gerenciamento eficiente de materiais é essencial para o sucesso de um projeto elétrico. No SOLIDWORKS Electrical, esse processo é otimizado pela geração automática da Bill of Materials (BOM), que reúne quantidades, especificações e referências de fabricantes diretamente do projeto.
Além disso, é possível personalizar as tabelas, incluindo listas de manufatura e metragem de fios e cabos, garantindo agilidade e reduzindo erros manuais na documentação.
Com todas essas etapas, conseguimos finalizar essa “receita de bolo” que é primordial para qualquer projeto. Afinal, sabemos que uma máquina sem a elétrica seria apenas um conjunto de metais conectados.
Otimize seus projetos elétricos com a SKA
A SKA é referência nacional no fornecimento de tecnologia para indústrias, e oferece as mais avançadas soluções para Design e Inovação, Fábrica Inteligente e Governança da Informação.
Quer saber mais sobre o SOLIDWORKS Electrical? Fale com um de nossos especialistas e eleve o nível de seus processos conosco.
*Texto original escrito por Samara Machado, Pré-venda na SKA, e adaptado por Eduardo Bento, Jornalista na SKA.



